Budapest VII. kerület, Jósika utca – esettanulmány

A legfelső szinten található három lakás egyikének utcára néző szobájában a homlokzati fal és a födém hajlatában észleltek először kisebb, nagyjából tenyérnyi vakolatleválást. Ennek kezdeti vizsgálata segített eljutni a födém egészére jellemző hibákhoz, a korábbi beavatkozásokhoz, illetve a később világossá vált, összetett problémához.
Bár ennek az írásnak egy konkrét épület a tárgya, szinte bármelyik hasonló korú és hasonló kialakítású épületről is beszélhetnénk, amelyeknél sajnos gyakran konstrukciós hibák, tervezési tévedések okozzák a későbbi károkat, vagy legalábbis kialakulásuk esélyét nagyban megnövelik. A károk mértékét fokozhatja még az épületek szakmai felügyeletének, általános ellenőrzésének a hiánya, a korábbi ingatlankezelők által az évtizedek során végrehajtott látszatbeavatkozások tömege, majd a forráshiányos tulajdonosi kör időnként kényszerű tétlensége.
A helyszín és a környezet

A tetőtáj viszonylag homogén: egységes párkányvonal, közel azonos gerincvonal és tetősíkok láthatók a teljes utcaszakaszon, sőt szinte az egész tömb területén. A tetőfedés anyaga jellemzően és szinte kizárólag égetettagyag-cserép a természetes halványpiros színűtől a sötétbarnáig. A vizsgált épületen csak az utcai tetőfelületen található szabvány szürke rombusz műpala (azbesztcement) héjazat. Az egy épületen vagy akár egy tetősíkon belül látható más és más színű cserépfedés a különböző időszakokban megvalósult javítások, héjazatcserék területeit mutatja.

Az utcai homlokzati fal felett attikafalat építettek, mögötte horganyzott acéllemezzel borított nyílt csapadékvíz-elvezető járható szélességű vályúval, ennek két végén a padlástérbe vezetett elfolyással, a padlástéren belül pedig egy-egy nyílt, négyszög keresztmetszetű vályús belső elvezetéssel.
Az épületről

A Budapest belvárosában a múlt század fordulóján épült, eklektikus bérházak gyakoribb magassága a földszint plusz három emelet – főleg a kisebb utcákban vagy akár a Nagykörúton –, bár a jelentősebb útvonalak mentén a négyemeletes kialakításra is vannak példák.
1898. július 11-én állították ki az építési engedélyt, nem sokkal ezután készülhetett el az épület. Az azóta eltelt idő alatt jelentősebb, tartószerkezeteket érintő átalakítások nem történtek, az épület egésze az építéskori állapotot tükrözi, kivéve a rosszul átalakított függőfolyosókat, a második lépcsőház feletti cserélt vagy pótolt födémszakaszt.
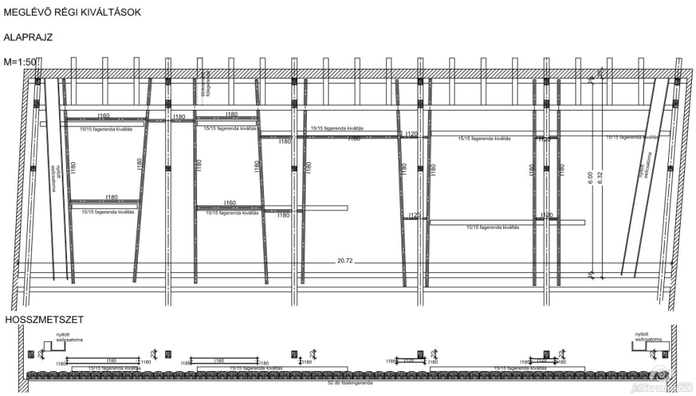
Az utcai födémmezőket két egymást követő időszakban megerősítették, a megerősítések módját és hibáit a továbbiakban részletesen bemutatom.

Az eredetileg tervezett aszimmetrikus tetőszerkezet a homlokzati fal tető alatti magasításával, megemelt fiókgerendákkal és fiókváltóval. Ebben a megoldásban nincs hózugként is működő csatorna, és az attikafal térdfalként a tetősík alá kerül, ebből következően a tető a térdfalat le is terheli.
Azonban nem ez a változat valósult meg, az utcai tetősíkot is a kötőgerendákról indították, az attikafalat a tetősík felett megépítették, illetve mindkét oldalon azonos szögben alakították ki a ferde dúcok és a szarufák dőlését.
Az épület teljesen alápincézett, földszint és háromemeletes többlakásos lakóház, beépítetlen, üres tetőtérrel, padlással, a földszinten eredetileg üzlethelyiségekkel, amelyekhez pinceszinti raktárak tartoztak.
Tartószerkezeti rendszere az építés korára jellemző és általánosan alkalmazott, hagyományos falas-födémes. A pinceszinten dongaboltozatot és acélgerendák közötti téglaboltozatos poroszsüveg-födémet alkalmaztak, a közbenső födémek mindegyike acélgerendák közötti poroszsüveg-boltozatos, a III. emelet feletti zárófödém pedig a szintén általánosan alkalmazott csaposgerendás fafödém (egy kisebb, háborús sérülés után borított gerendás fafödémmező kivételével).
A zárófödém fagerendái a főfalak felső záródásánál kialakított, a falvastagság váltásából adódó kb. 15 cm széles falvállakra ülnek. A fedélszék a változó szélességű utcai szárny felett a födémtől független szerkezetként készült típusmegoldás egyedi adaptálásával közvetlenül a szélső és a közbenső teherhordó falra támasztva.
Környezet és egyéb adottságok
Az épület nagyvárosias környezetben, hasonló vagy éppen azonos léptékű épületekkel sűrűn beépített területen található, ahol a környező terep sík, gyakorlatilag vízszintes. A terület távolabb esik a mai Nagykörút helyén húzódó egykori Duna-ág vonalától, de földtani értelemben folyami területről beszélhetünk.
Budapest Geokalauza, MBFSZ térkép szerint az utca ezen része két terület határa közelében fekszik, de az épület területének altalaja egyértelműen folyóvízi-eolikus homok.
Vizsgált problémák
Tetőszerkezet, attikafal, eresz és főpárkány
Az épület vizsgált utcai szárnya trapéz alaprajzú, amit nyeregtetővel úgy tudtak fedni, hogy a gerincvonalon a két fő tetősík között egy közbetett, fémlemezfedésű lapostetőszakaszt alakítottak ki változó szélességgel. A fedélszék alapja kétállószékes függesztős, ferde dúcos, a geometriai adottságok miatt a szarufák a gerinc magasságában nem metszik egymást, ezért ott vízszintesen kvázi torokgerendákat építettek be a két gerincszelemen és a két függesztő közé.
A tetőszerkezet jellemző keresztmetszeti méretei:
kötőgerendák: 20/23 cm
fiókgerendák: 18/23 cm
fiókváltók: 20/23 cm
szarufák: 13/15 cm
bakdúcok: 13/15 cm
állószékek: 15/15 cm
derékszelemen: 15/15 cm
fogópárok 10/18 cm
A fedélszék mint történeti tetőszerkezet alapvetően gerendákra ültetett fogópáros szelemenes rendszerű. A szakirodalom szerint „szakmatörténeti megítélése bizonytalan (eklektikus vagy modern szerkezet?)” (Fátrai György: Történeti tetőszerkezetek, 5. fejezet), illetve „későbbi állószékes fedélszék” (Pattantyús-Ábrahám Árpád: Épületrehabilitáció, 7.3 fejezet).
Az épületszárny szélessége kb. 14 és 15,5 méter között változik, ami már túl van a hagyományos felosztás szerinti kétállószékes fedélszék kb. 12 méterig szokásos alkalmazásánál, így konzekvens a háromállószékes (kétállószékes függesztős) kialakítás. A szerkezet egésze fő- és mellékállásokra tagolódik. Kötőgerendák, székoszlopok a karpántokkal, ferde dúcok, fogópárok és függesztők a karpántokkal csak a főállásokban vannak, a mellékszaruállásokban csak szarufák és fiókgerendák találhatók. A csomópontokban klasszikus ács fakötések láthatók. A székoszlopok és ferde dúcok csomópontjai feles ferde lapolással készültek, a szarufák és derékszelemenek csomópontjai horgolással (kármi), a fogópárok és derékszelemenek találkozása egyszerű rovás.
A fedélszék az épület egészén belül önmagában is hierarchikus rendszer, amin belül az elsődleges vagy fő tartószerkezet a főállások és a szelemenek térbeli hálózata, amire a szelemenek vonalán síkbeli hálózatként támaszkodik a szarufák sora. A szarufák alsó megtámasztása ettől némileg eltér, hiszen ott nem végigmenő szelemen alkot átmenetet a haránt- és a hosszirány között, hanem a kötőgerendák közötti beljebb húzott fiókváltó, ami a fiókgerendák lekötésével támasztja meg az alsó szaruvégeket.
Az attikafal a főpárkány feletti falazat, 30 cm (1 tégla) vastag, kb. 150 cm magas, az utca felőli oldalán eredetileg vakolt, a tető felőli oldalán és a felső zárósíkja teljes felületén horganyzott acéllemezzel fedett. Lemezfedés készült a tetősíkon is az attikafal magasságáig, alul a két sík találkozásánál járható szélességű vízelvezető vályút alakítottak ki kétirányban vezetett lejtéssel (lásd a mellékelt részletrajzot).
Az attika merevítetlen, oldalirányú megtámasztása nincs, csatlakozó merőleges falazat vagy a fedélszékhez való kikötés nem készült, „leterhelését” pusztán a saját tömege adja. Állapotáról és az azzal összefüggésben született döntésről később részletesen írok.


A főpárkány négy vagy öt téglasor magas, a homlokzati főfal külső síkjától kb. fél tégla mérettel kiugratva falazott tagozat eredetileg vakolt felületekkel, díszítésekkel. A főpárkány felett a kötő- és fiókgerendák kinyújtására készített alsó és felső deszkaborítás és homlokdeszka képezi az épület megjelenésében meghatározó ereszkinyúlást. Az ereszről az alsó deszkázat és az oromdeszka több mint 80 százaléka hiányzik, a kinyúló gerendavégek az időjárás hatásainak már hosszú idő óta kitéve erősen korhadtak, a sárgerendának csak kisebb maradékai láthatók, az eresz felső bádogozása hiányos, az illesztések nagy része nyitottá vált. A mellékelt kép közepén látható szakaszon az eresz és az attikafal csatlakozásánál átszűrődő fény jelzi a nagyméretű hézagot közel 1,5 méter hosszúságban.
Károk a fedélszéken
A fedélszékek a tapasztalatok szerint nem általában károsodnak, hanem jellemzően néhány kitüntetett helyzetben, illetve a rendeltetésszerű használattal, igénybevételekkel nem összeegyeztethető hatások eredményeként. Ezt igazolják a még mindig sok helyen eredeti állapotukban épen megmaradt barokk kori fedélszékek is templomokon, rendházakon, kastélyokon.
Az esetleges különleges hatások által okozott túlzott mechanikai igénybevételeken túl a faanyagú szerkezeteket leginkább veszélyeztető hatás a gyakori, nem állandó, de hosszú időn át fennálló nedvesítő hatás (csapadékvíz bejutása a szerkezetek anyagába), mely a levegőben jelen lévő gombaspórák megtelepedéséhez és kifejlődéséhez vezet, illetve a kártevő rovarok megjelenése és megtelepedése a faanyagban.
A vizsgált épületben a fedélszék leginkább károsodott részei a homlokzati attikafal mögötti csapadékvízvályú, illetve annak két bevezetése környezetében vannak, az épület középvonala és a gerinc irányában felfelé szinte károsodásmentes.
Az eredetileg három oldalról falazattal körülvett sárgerenda keresztmetszetének nagy része elfogyott. Egyaránt láthatók a gombakárosodásra utaló nagyköbös bontás nyomai, valamint a rovarkárra utaló járatnyílások és furatiszt halmok.
A gombabontott kötőgerendavég alsó része levált a teljes eredeti szelvényből.
Ebben az állapotában a faanyag maradéka semmilyen célra nem alkalmas, csak az eltávolítása és pótlása lehet megoldás.
A szerkezeti csomópontban kialakuló degradáció következtében a szaruvég benyomódik a kötőgerendába, amivel megváltozik az utcai tetősík geometriája, a cseréplécek, illetve a vályú bádogozása alatti deszkázat alulról húzó-hajlító igénybevételt kap, ami repedésekhez, töréshez vezethet.
Attikafal károsodása



A vizsgált épület 30 cm vastag attikafala a mellékelt kép előterében, a szomszédos épület tűzfalának utca felőli széle a kép hátterében látható. A jól kivehető dőlés iránya a tetőfelület felé mutat, a mértéke 130 cm magasságban mérve kb. 20 cm, ami megközelítőleg 9 százalékos ferdeséget jelent.
A fal külső felülete védelem nélküli, a hézagokban lévő habarcs laza, erodálódott, a belső oldalon kialakított csatorna felől teljes magasságában lemezfedéssel borított, védett, ugyanakkor ez a lemez a külső oldal felől érkező nedvesség kiszáradását gátolja.

A fal külső oldala a nedvességnek jobban kitett, a habarcs nedvességtartalma a szabad felület miatt nagyobb határok között változik, így amikor intenzívebben nedves állapotban éri a fagyhatás, nagyobb belső feszítőerő lép fel, nagyobb mértékben tágul a habarcshézag, ezzel kialakítva a tető belseje felé mutató dőlést/görbületet.
A helyzet rendkívüli kockázata – figyelembe véve az épület előtti parkolást és utcai forgalmat, illetve járdán zajló gyalogosközlekedést – a falazóelemek közötti kohézió megszűnése, a fal görbületéből adódó külpontosság miatti stabilitásvesztés, majd a fal kisebb-nagyobb darabjainak leesése az épület előtti utca- és járdaszakaszra. A bontást gépi erő nélkül, az egyes téglák kézzel történő kiemelésével tudták végrehajtani, ami igazolta a fal állapotára vonatkozó aggályainkat.

Szükséges beavatkozások, megerősítések
A veszélyessé vált attikafal esetében egyedüli megoldás a bontás úgy, hogy a fal eltávolításával együtt az alatta lévő kiugratott főpárkányt is el kell távolítani, majd a későbbiekben születhet döntés és műszaki megoldás a megfelelően kialakított újjáépítésre vonatkozóan.
Veszélyes állapotú a főpárkány feletti eresz is, a képen látható alakváltozások a fiókgerendák stabilitásvesztését mutatják, a felső deszkázat széle nagyon nagy mértékben hullámossá vált.
Zárófödém
A zárófödémet a korszak általános építési módja szerint sűrűgerendás – csapos – fafödémként építették meg az utcával párhuzamos szélső és közbenső főfalakra támasztva, a két traktusban azonos módon, tartószerkezeti szempontból egymástól függetlenül. A zárófödém és a fedélszék egymástól független szerkezetek, a fedélszék a kötőgerendák segítségével csak a főfalakra támaszkodik.
Az egyes gerendák alapvetően önmagukban kéttámaszú, mindkét végükön csuklós gerendák, csak vonal mentén megoszló terheléssel. Ezek azonban nem önmagukban működnek, hiszen a kb. 45 fokos ferdeséggel beütött ékpárok a szomszédos gerendákat együttdolgozásra kényszerítik. Az érintett traktusban 52 db változó szélességű gerenda található, a sor végén egy négyszög keresztmetszetű fűrészelt gerendát építettek be a felület teljes kitöltése érdekében. A főfalakra a födémgerendákat általában szabadon feltámasztották, ebben az esetben a falegyenre fektetve egy teherelosztó deszkát találtam, amely a rostirányra merőleges lokális összenyomódásával kiegyenlíti a falazat felső és a fagerendák alsó síkjai közötti eltéréseket.

A födémbe beépített fagerendák keresztmetszetének alsó síkja egyenes, mindkét oldalán egy-egy függőleges, fűrészelt sík felülettel, míg a felső oldaluk a többség esetében a fatörzs természetes körszerű keresztmetszetéből adódóan íves, domború.
Az átlagosnál nagyobb szélességű fáknál a felülre kerülő oldalból is fűrészeltek annak érdekében, hogy a gerendákra kerülő, hőszigetelő szerepet betöltő homokos salakos felöltés sehol ne vékonyodjon el, a feltöltésre rakott 4 cm vastag padlásburkoló téglának biztosított legyen az egyenletes és kellő vastagságú ágyazás.
A gerendák természetes sudarasodását a beépítés során kezelték oly módon, hogy a teljes felület kezdő és záró gerendája egymással párhuzamos legyen. A gerendavégek szélességét a helyszínen megmértük, a legkisebb szélesség 31 cm, a legnagyobb 49 cm. A falközméret 6,00 méter, a gerendák hossza kb. 630 cm.
A födémgerendák sora az épület teljes szélességében folytonos, a legfelső szint válaszfalait – más épületeknél alkalmazott megoldással ellentétben – nem falazták fel a gerendák között.
A födém síkjában mai értelemben vett koszorú nem készült, hiszen az építés idején még nem alkalmaztak beton vagy vasbeton szerkezeteket, azonban mégis kialakítottak koszorúként működő szerkezeti megoldást az akkor rendelkezésre álló építőanyagból. A fa födémgerendák felső síkja közelébe eső olyan téglasorban, ahova a szabályos téglakötés szerint is csak futó helyzetű elemek kerültek, a végigmenő vízszintes hézagban laposvas pántot építettek be a sarkoknál is átfordítva. A gerendavégekkel csatlakozó oldalakon a fagerendákba felülről beütött kapcsok külső végét pedig a laposvas pánthoz rögzítették.


A gerendavégek felmérési adatai mutatják a szerkezet sajátosságait.
Legkisebb szélesség: 31 cm (ehhez tartozó másik vég mérete 35 cm)
Legnagyobb szélesség: 49 cm (ehhez tartozó másik vég mérete 38 cm)
Átlagos szélesség: 39,3 cm

Az ékpárok alaprajzi értelemben szimmetrikus beépítése biztosítja a gerendák hossztengelyirányú együttdolgozását is.
A födém lehetséges, legalább részleges tárcsahatásának vizsgálata

A főfalak és a fagerendák közötti teherátadásra is alkalmas kapcsolatról jelen esetben minden 8-10. gerendavégbe felülről beütött, a falazatba bekötött, szeggel kiegészített acélkapocs gondoskodik.


Ezek segítéségével a szélső és a közbenső főfalak között nemcsak nyomóerő, hanem húzóerő átadódhat, de csak azoknál a gerendáknál, ahol a kapcsokat beépítették. A felül alig leterhelt legfelső emeleti falak harántirányú merevségét nagyobb mértékben tudja segíteni vízszintes tárcsa, mint a pontonkénti megtámasztás, ezért megvizsgáltam ennek a lehetőségét is. Azt találtam, hogy a gerendák közé beépített kettős ékpárok következetesen szimmetrikus elrendezése a közbenső helyzetű ékeknek a külső helyzetű ékek általi közrefogása megakadályozza az egyes gerendák egymás melletti elcsúszását is, így nem csak függőleges együttdolgozás van az ékpárok ferde, egymásra támaszkodó pozíciója miatt, hanem a súrlódás és az esetleges beékelődés mellett a gerendák hossztengelye irányában az ékek oldalnyomásra dolgozva megtámasztják egymást. A keményfa ékek jellemző keresztmetszeti mérete a 3×3 és a 3×5 cm között található, az egymásnak támaszkodó felület így szinte minden esetben kb. 9 cm2. A nyomóerő iránya mind függőlegesen, mind vízszintesen az ékpárokban a rostok irányára merőleges.
Korábbi megerősítések
A padlásfödémnek valamilyen károsodását vagy arra utaló jeleket a korábbi évtizedekben is észlelhettek, melyekre válaszul a hibás vagy annak vélt gerendák terheit felső kiváltásokkal áthárították a szomszédos ép vagy épnek vélt gerendákra úgy, hogy a födém felső síkjára fektetett négyszögszelvényű fűrészelt gerendához minden födémgerendát felkötöttek egy-egy átmenő csavarral, majd alulról a mennyezeten a csavarok helyét javították. Ezeket a kiváltásokat a fesztáv egynegyede körüli sávokban, két vonalban helyezték el.
Későbbi időszakban az akkor már meglévő kiváltásokon túl újabbakat építettek be a zárófödém fölé, immár melegen hengerelt I szelvényű acélgerendákból úgy, hogy az új acélgerendákhoz laposacél pántokkal felkötötték a régebbi kiváltókat, majd az új acélgerendák végeit feltámasztották a födémgerendák végpontjaira helyezett kisebb gerendadarabokra. A középső főfal feletti részen a födémgerendavégek állapota megfelelő volt és alkalmas a rostok irányára merőleges terhek felvételére, azonban a külső fal mentén az 52 db födémgerendából 36 darab súlyosan károsodott, több helyen a keresztmetszet nagy része hiányzott, mély korhadással érintett. Ebben a helyzetben alakult ki az a megoldás, hogy a kiváltó – a károsodott tartók terhét átvevő – szerkezetet magára a károsodott tartóra, annak végre támasztjuk le. A számítható teherbírás nélküli alátámasztás miatt valódi támaszként csak a belső főfal feletti pontot vehetjük figyelembe, ezért némi túlzással a helyzetet az egytámaszú konzolos tartó eseteként lehetne leírni, de pontosabb az egyik végén összenyomódó vagy süllyedő támaszú gerenda modellje. A teljes erőjáték és a tényleges teherbíró képesség (ellenállás) kérdése természetesen ennél jóval árnyaltabb; mindenesetre jellemző a látszatmegoldásokkal megelégedő beavatkozások időszakának gondolkodásmódjára, és megmutatja annak rendkívül veszélyes eredményét.
Károk a födémen
A fal-födém csatlakozásnál a levált vakolat felett láthatóvá váltak a korhadt és már hiányos gerendavégek és a fektetődeszka. A zárófödém letisztítása után felülről is jól láthatóvá válik a károsodás a mélyen korhadt gerendavégeken. A homlokzati fal felső szakaszának belső felülete és a gerendavégek között értékelhető, kiszellőzést biztosító hézag nincs, de ebben az esetben a gombakárosodást a tetőfelületről, illetve a hibás attikacsatornáról bejutó csapadékvizek is nagyban segítették.



A födémen jelentkező legsúlyosabb kár az egyes gerendavégek jelentős keresztmetszet-csökkenése.
Ennek látványos megnyilvánulása több ponton a padlástérből a födémben keletkezett kb. 8-10 cm széles hézagon keresztüli átlátás a III. emeleti lakásba.
Mivel a korábbi, egyébként is tévesen kialakított megerősítések többsége már nem, vagy csak kis mértékben tölti be a szerepét, és a gerendavégek ilyen mértékű károsodása rendkívül nagy kockázattal jár, azonnali beavatkozásként szükségessé vált a legrosszabb állapotba került födémszakasznak a sérült támaszpontok közelében történő ideiglenes alátámasztása az érintett födémszakasz tehermentesítése után. A tehermentesítés a padlásburkoló tégla és a feltöltés teljes eltávolításával és a használat tiltásával történt meg.
Csepely Péter
tartószerkezeti rekonstrukciós szakmérnök
Források
- archív térképek: hungaricana.hu
- archív tervek: Budapest Főváros Levéltára
- légi felvételek: GoogleMaps
- földtani térkép: Budapest Geokalauza, MBFSZ térkép
- Budapest VII. kerület Erzsébetváros Helyi Építési Szabályzata
- a külön forrásmegjelölés nélküli képek: Csepely Péter saját
- a külön forrásmegjelölés nélküli rajzok: Csepely Péter saját
Hivatkozások
- Épületek megépült teherhordó szerkezeteinek erőtani vizsgálata és tervezési elvei TSZ 01-2013
- Magasépítési szerkezetek terhei MSZ 15021/1-86
- Építmények falazott teherhordó szerkezeteinek erőtani vizsgálata MSZ15023/87
- Építmények acélszerkezeteinek erőtani tervezése MSZ15024/1-1988
- Építmények teherhordó faszerkezeteinek erőtani tervezése MSZ15025/86
Felhasznált szakirodalom
- Fátrai György: Történeti tetőszerkezetek, 2008., Terc Kft
- Dr Möller Károly, Építési Zsebkönyv, 1943., Királyi Magyar Egyetemi Nyomda
- Pattantyús-Ábrahám Ádám: Épületrehabilitáció, 2021., Terc Kft
- Dr Gábor László: Épületszerkezettan III. kötet, 1979., egyetemi tankönyv
- Déry Attila: Építészeti szakkifejezések szótára, 2011., Terc Kft
- Bajza József: Szemrevételezéses épületdiagnosztika, 2022., Terc Kft
- Dr Palotás László: Mérnöki Kézikönyv 5. kötet, 1965., Műszaki Könyvkiadó
- Dr Dulácska Endre: Kisokos statikusoknak, 2021., Artifex Kiadó
- Gálos Miklós, Pintyőke Gábor: Kő. és tégla vegyes falazatok statikai vizsgálata, 2007
- Nemes Rita – Józsa Zsuzsanna: Vegyes falazatok jellemzői és problémái Budapest belső kerületeiben, 2010
- Horváth Zoltán András – Tóth Mária: A templom és a szobrok kőanyagának pusztulása, chemonet.hu
- Dr Bárczi István: Teherhordó szerkezetek zsebkönyve, 1984, Műszaki Könyvkiadó



